BAB Architects Logo
© 2024, BAB Architects
Ekol Tv Program Studio
2024İstanbul430 m²design + contruction

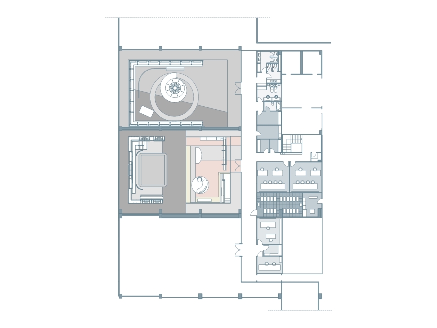
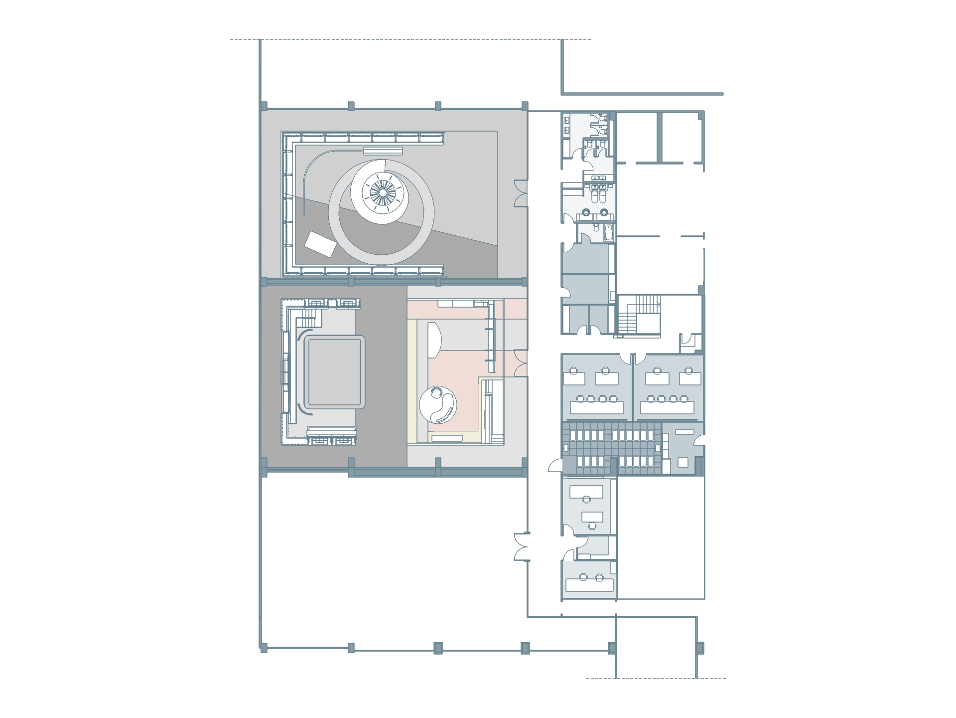
Ekol TV Program Studio is a daytime studio that was designed to offer unique concepts for two different programs. Accordingly, the space facilitates modular arrangement based on the specific needs and atmosphere of each program. This flexible design approach aimed to highlight the identity of each program while providing viewers with a distinctive experience.

Studıo Floor Plan and Axonometric

photo credit: egemen karakaya