BAB Architects Logo
© 2024, BAB Architects
Ekol Tv News Studio
2024İstanbul400 m²design + contruction

The news studio designed to represent the innovative and determined stance of the newly established television channel;


The modular desk system enhances workflow by adjusting its form, ensuring flexibility to support content production, while also offering viewers a contemporary and professional presentation. Metallic details and transparent surfaces are integrated with technological equipment such as high-tech LED screens, lighting elements, and advanced electrical infrastructures to create a suitable environment for modern media production processes.

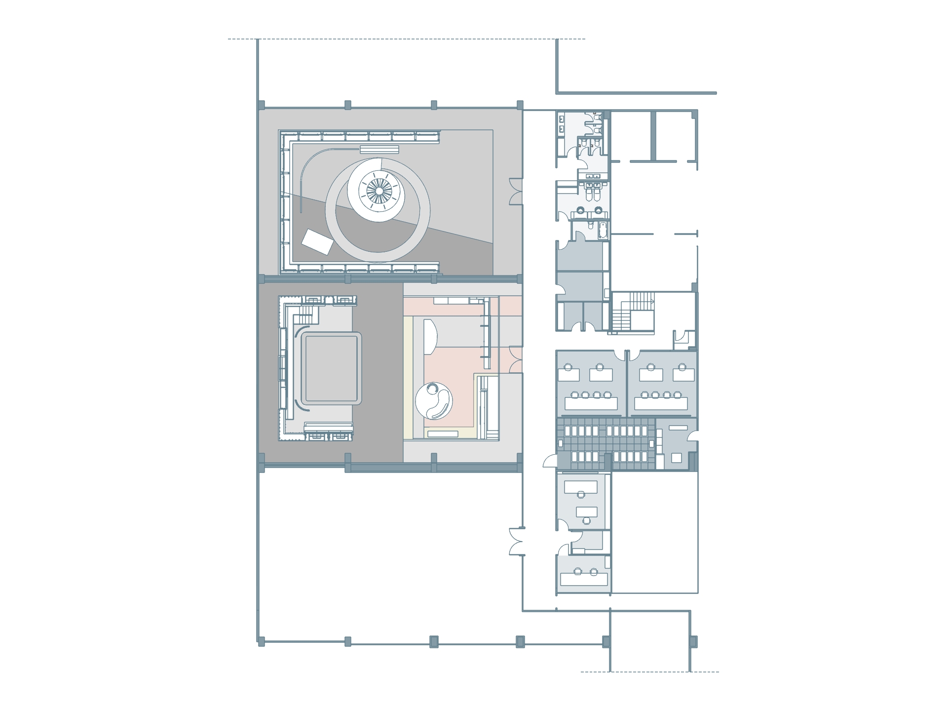
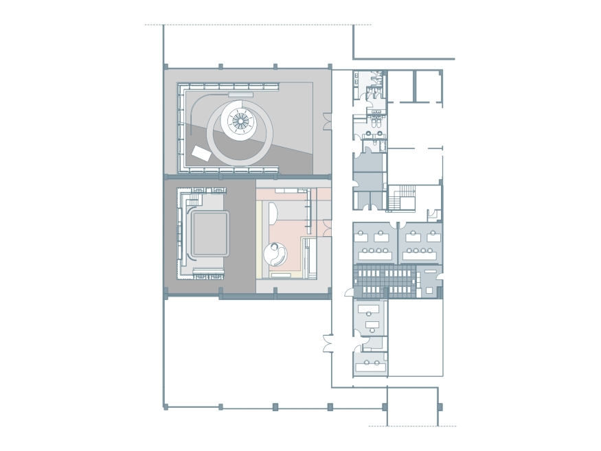
Studıo Floor Plan and Axonometric

photo credit: egemen karakaya